VideoCAD – Software para Projeto de sistemas de CFTV
O VideoCAD é uma ferramenta que permite projetar e definir a área de visão e posicionamento de câmeras, auxiliando no projeto de sistemas de CFTV de qualquer nível de complexidade.
É um software amigável, permitindo mesmo a iniciantes o uso de novas ferramentas de qualidade e recursos específicos para CFTV sem necessitar de longos treinamentos ou conhecimentos prévios sobre CAD ou modelagem, além de efetuar todo os cálculos necessários.

O VideoCAD resumidamente melhora a qualidade do projeto e desenvolvimento de um sistema de CFTV, deixando-o em um nível profissional que dificilmente será igualado ou ultrapassado pelos seus competidores.
Com o VideoCAD é possível:
• Escolher a lente mais adequada, assim como definir a altura e localização para a instalação de câmeras de forma a fornecer os parâmetros adequados de campo de visão, área de detecção e identificação de pessoa, leitura de placa veicular ou mesmo obter a imagem de um objeto no tamanho necessário utilizando os tamanhos reais de cada objeto.
• Construir modelos tridimensionais de cenas reais com a possibilidade de carregar modelos 3D pré-definidos (pessoas, carros, etc., esta biblioteca pode ser ampliada).
• Capturar um modelo de uma imagem real de cada câmera, Esta imagem pode ser impressa e salva.
• Modelar parâmetros de qualidade de uma imagem de vídeo (resolução, compressão, cor, nitidez, contraste, brilho).
• Escolher visualmente a localização relativa de câmeras usando a janela gráfica com uma interface de CAD.
• Calcular os tamanhos das projeções horizontal e vertical, detecção e identificação de pessoa, leitura de placa veicular para desenha-las no plano do objeto.
• Medir as distorções da área de visão, ocasionadas por obstáculos naturais.

• Calcular a profundidade de campo de cada câmera em um projeto.
• Calcular o tamanho da imagem no monitor de qualquer objeto dentro da área de visualização da câmera, em porcentagem do tamanho da tela, pixels, linhas de TV e milímetros.
• Localizar e inserir câmeras e cabos em plantas prontas nos formatos *.bmp, *.jpg, *.emf, *.wmf, *.dwg, *.dxf. Para mostrar arquivos *.dwg e *.dxf é utilizado o módulo de importação de CAD fornecido pelo CAD Soft Tools http://www.cadsofttools.com.
• Obter um desenho contendo duas projeções do layout do objeto com as imagens da câmera, cálculos de área de visualização e cabos, com a grade de coordenadas e títulos do objetos e construções no projeto, assim como todos os gráficos.
• Imprimir o desenho resultante em uma ou diversas páginas. Possibilidade de utilizar páginas formatadas com quadros, logotipos e legendas pré-impressas.
• Exportar o desenho do projeto nos formatos: *.bmp,*.emf, *.wmf, *.dxf (R14),*.dxf (R2000).

• Obter um arquivo de texto com uma descrição completa de todas as câmeras no projeto, áreas de visualização e cabos, com todos os dados prontos a serem inseridos em um documento de texto contendo detalhes do projeto (orçamento ou memorial descritivo) ou até mesmo para ser utilizado como instruções para a instalação.
• Projetar a interface do operador usando a janela de Monitores.
• Estudar as influências dos critérios de detecção ou identificação de pessoa e reconhecimento de placa veicular nos tamanhos dos locais das áreas correspondentes modificando os critérios de acordo com a imagem de vídeo obtidas.
• Estudar os princípios de representação de objetos em diferentes partes da áreas de visualização usando um objeto de teste e a janela gráfica.

• Calcular a distância e parâmetros elétricos dos cabos.
• Verificar as verdadeiras necessidades e prioridades de câmeras, possibilitando a redução das quantidades envolvidas no projeto, assim como reduzir o custo com acessórios e cabos, melhorando a eficiência da cobertura.
• Reduzir o tempo gasto e melhora a qualidade do projeto.
• Reduzir a quantidade de situações controversas com clientes e acelerar a sua solução.
Com o VideoCAD também é possível:
• Calcular a projeção da área de visualização horizontal de acordo com a distância focal da lente, formato do sensor, altura de instalação da câmera, as alturas máximas e mínimas assim como o alcance máximo de cobertura.
• Calcular as projeções horizontais para áreas de detecção e identificação de pessoa, leitura de placa veicular de acordo de acordo com a distância focal da lente, formato do sensor, altura de instalação da câmera, as alturas máximas e mínimas assim como o alcance máximo de cobertura, levando em conta os critérios relacionados, dependendo do nível de qualidade da imagem de vídeo.

• Determinar o encaixe total ou parcial de um objeto ou assunto na área de visualização no monitor em porcentagem do tamanho do monitor, pixels, linhas de TV e milímetros nos tamanhos conhecidos de monitores usando as dimensões reais do objeto, altura acima do solo e distância do local da câmera.
• Modelagem de cenas 3D e imagens de vídeo de câmeras levando em consideração os parâmetros de qualidade de cada câmera do sistema.
• Modelagem de monitores para sistemas de CFTV.
• Calcular o ângulo da câmera de acordo com o alcance máximo de visualização requerido, altura, lente assim como os parâmetros de matriz da câmera. Portanto, não há a necessidade do projetista calcular previamente estes parâmetros.
• Mostrar uma imagem modelada da área de visualização permitindo medir qualquer parâmetro em qualquer ponto usando a janela gráfica.
• Salvar a imagem modelada da área de de visualização atual em formatos gráficos padrões.
• Criar, salvar e carregar projetos contendo até 100 câmeras e até 10 layouts.
• Exportar projetos para arquivos de texto.
• Manter um banco de dados de critérios de detecção, identificação de pessoa, leitura de placa veicular, dependendo dos níveis de qualidade da imagem de vídeo.
• Calcular automaticamente as distâncias e parâmetros elétricos do cabeamento de alimentação.
• Desde a versão 2.0 do VideoCAD 2.0 a interface de CAD é usada na janela gráfica.
Todos os cálculos são feitos em tempo real permitindo verificar a influencia de cada parâmetros especificado sobre o resultado final. O VideoCAD não utiliza formulas ou técnicas simplificadas ou aproximações, evitando ao máximo situações reais com erros consideráveis. Opera com os parâmetros de cálculo corretos, tanto na digitação como na seleção por lista ou menu.
O VideoCAD também é uma excelente ferramenta na apresentação de projetos profissionais de CFTV demonstrando ao cliente profissionalismo, organização e planejamento.
Trata-se de um software muito estável e amplamente testado, estando na versão 6.1. Na qual foram inseridos inúmeros recursos e funcionalidades.
Por toda a qualidade e recursos oferecidos, o VideoCAD não é um software gratuito, mas para projetos empresas e projetistas que buscam profissionalizar seus projetos e sistemas é um investimento baixo em relação aos benefícios e facilidades fornecidas.
A versão de demonstração pode ser utilizada por um período de 30 dias fornecendo acesso as principais funções do software.
A versão de demonstração pode ser utilizada por um período de 30 dias fornecendo acesso as principais funções do software.
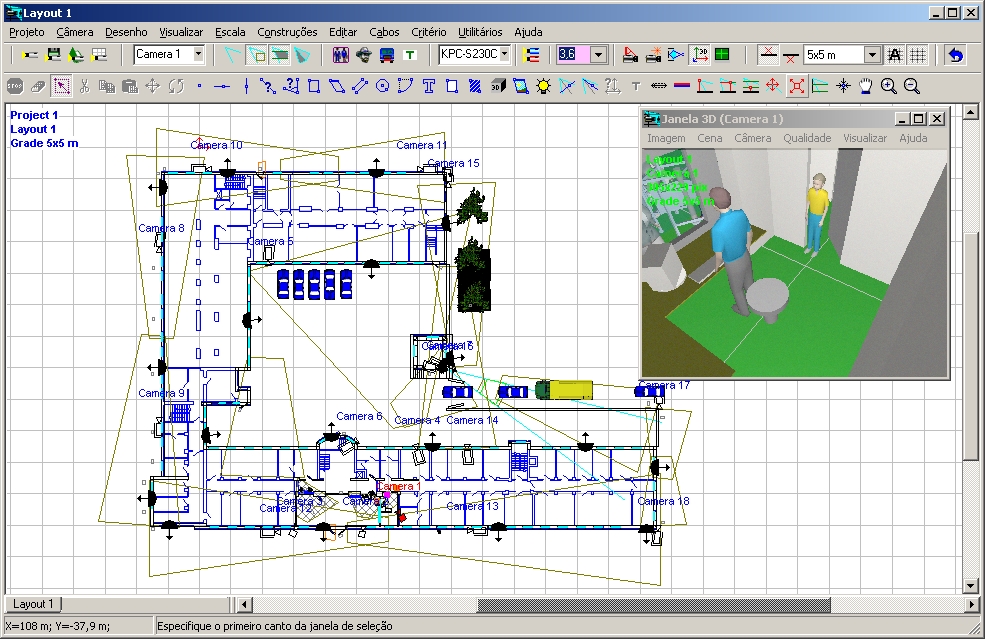
Veja abaixo a janela principal do software:

Baixe aqui a versão Demo do VideoCAD, funcional por 30 dias
Para maiores informações entre em contato conosco.
Marcelo Peres
Editor do Guia do CFTV
Avalie este artigo, mande seus comentários, de suas sugestões. Encontrou alguma informação incorreta ou algum erro no texto?
Escreva para mim:
mpperes@guiadocftv.com.br


